Не упусти свой шанс! Последние акции от застройщиков  ▼

Продается 2-комнатная квартира, Ленинградское ш., 228к4

17 540 838 Р

Ленинградское ш.228к4

Дата публикации: 2 апреля 2026

Дата обновления: 19 мая 2026

Телефон: 
Показать телефон

+7 (495) 021-62-30

Агентство:  Джойнио

От застройщика: 0 квартир в продаже

Этаж: 7 / 14

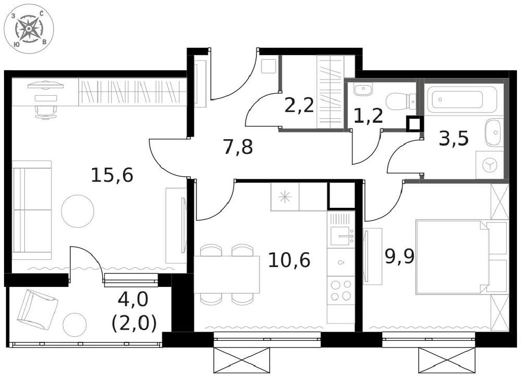
Общая: 53,2 м2

Жилая: 25,5 м2

Кухня: 10,6 м2

Комнаты: не указано

Балкон/лоджия: не указано

Лифт: лифт пассажирский

Окна: окна во двор

Санузел: не указано

Мусоропровод: нет

Состояние квартиры: без отделки

Тип дома: панельный

Год постройки: не указано

Территория: не указано

Парковка: не указано

Статус сделки: продажа

Сделка: прямая продажа

Собственность: не указано

Основание права собственности: не указано

Описание

Продается 2-комн. квартира, площадью 53.2 кв.м.
Жилая площадь 25.5 кв. м, кухня 10.6 кв. м, ремонта нет, окна выходят во двор.
Квартира располагается на 7 этаже 14-этажного панельного дома в ЖК 1-й Ленинградский.
Дом оборудован пассажирским лифтом. Контактное лицо: Отдел продаж [#8180923#]

Квартира на карте

ПанорамыКарта
Спецпредложения
Добавить объявление